Проектирование, поставка и монтаж систем вентиляции и кондиционирования в квартире 111 м²
Проектирование, поставка и монтаж систем вентиляции и кондиционирования в квартире 111 м²
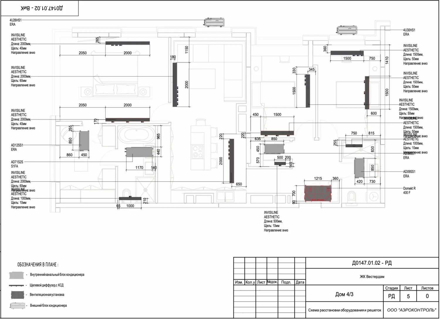
Выполненный объект приточно-вытяжной вентиляции и кондиционирования в квартире площадью ~111 м². Проект продуман и спроектирован с учётом всех дизайнерских элементов: для сохранения утончённого стиля и достижения низких шумовых показателей подобраны лучшие производители. За обработку воздуха отвечает приточно-вытяжная установка Komfovent. Чтобы приток поступал комфортной температуры, систему вентиляции доработали мульти сплит-системами с канальными внутренними блоками Mitsubishi Electric. За визуальную составляющую отвечают узкощелевые дизайнерские диффузоры INVISILINE AESTHETIC. В результате получился лаконичный и гармоничный проект.
Вентиляция
- Приточно-вытяжная установка Komfovent
- Узкощелевые дизайнерские диффузоры INVISILINE AESTHETIC
- Система распределения воздуха с балансировкой и шумоподавлением
Кондиционирование
- 2 мульти сплит-системы с канальными внутренними блоки Mitsubishi Electric
- Интеграция с вентиляцией для термоподготовки приточного воздуха
Основные регионы наших объектов
|
Оформите заявку на сайте, мы свяжемся с вами в ближайшее время и ответим на все интересующие вопросы.
|
Заказать проект
|